• 400-955-5758

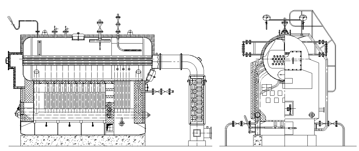
Парогенератор парового котла производительностью 4 т/ч

Параметры продукта

  • Изготовление на заказ:

    Доступно

ООО Сычуань ДонгТурбо Электрическая Компания
3-2-608, Третий восточный округ, Глобальный центр "Новый век", № 1700, северная часть проспекта Тяньфу, Зона высоких технологий, Чэнду, Китай
Описание продукта
Информация о компании
Упаковка и доставка
Транспортная Упаковка
стандартная транспортная упаковка
Происхождение
China
Описание продукта

Подробнее о продукте

Применимое топливо

В этом продукте используется метод быстрого сжигания в печи, при котором можно сжигать древесную щепу, деревянные блоки, деревянные полоски, кору, бамбуковый шелк, отходы предприятий по производству одежды и багажа, а также сломанную сельскохозяйственную солому.

Конструктивные особенности

(1) Арочная трубная решетка и резьбовая дымовая труба используются для формирования барабана, так что барабан изменяется от квазистального корпуса к квазиэластомерной структуре, а детали жесткости в области трубной решетки устраняются, и напряжение уменьшается. Дымовая труба в трубной решетке изменяется от двух проходов к одному проходу, что решает проблему трещин трубной решетки.

(2) Поскольку нижняя часть барабана оснащена рядом восходящих труб, зона застойной воды в нижней части барабана устраняется, благодаря чему шлам не так легко откладывается, а высокотемпературная зона барабана может хорошо охлаждаться, что предотвращает образование вздутия в нижней части барабана .

(3) Использование высокоэффективных резьбовых дымогарных труб позволило добиться улучшенных эффектов теплопередачи, улучшить характеристики нагрева котла и быстрого повышения давления, а также повысить тепловой КПД котла.

(4) Конструкция компактна, и по сравнению с аналогичным типом котла, общие размеры невелики, что экономит инвестиции в инфраструктуру котельной.

(5) Стабильная работа, удобная настройка и достаточная производительность.

(6) Резьбовая дымовая труба используется для улучшения теплопередачи, что улучшает коэффициент теплопередачи и тепловую эффективность, поскольку дымовой газ оказывает возмущающее воздействие в трубе. Пыль нелегко накапливается в трубе, которая играет роль самоочистки.

(7) Восьмиугольная стенка в топке и выходное дымовое окно имеют определенный эффект снижения пылеобразования. Исходная концентрация пыли в котле контролируется ниже стандарта, что гарантирует, что выбросы дыма и пыли котла соответствуют национальным нормам по охране окружающей среды.

(8) Уникальная конструкция с двойным слоем вторичного воздуха улучшает условия воспламенения биомассового топлива. Независимая воздушная камера используется для достижения разумного распределения воздуха, а в печи формируется аэродинамическое поле, способствующее горению, что обеспечивает высокую температуру горения и высокую эффективность горения.

1
2
111
  • Тип деятельности:
    Производитель / завод
  • Основная продукция:
    Турбоагрегат,Ремонт котла,Паровая турбина
  • Количество сотрудников:
    100+
  • Год основания:
    2012
  • Сертификация систем менеджмента:
    ISO9001
  • Средний срок поставки:
    15 рабочих дней
  • Номер:
    001
  • Среднее время ответа:
    ≤15 часов

Донгци Электрический - это производственная компания, которая проектирует, строит, устанавливает и обслуживает турбины для производства электроэнергии и промышленных приводов (насосы, вентиляторы и т.д.) по всему миру.

Возможность торговать
  • Международные торговые термины(Incoterms):
    Aнглийский язык
  • Условия оплаты:
    LC, T/T, D/P
  • Средний срок поставки:
    15 рабочих дней
  • Количество сотрудников по внешней торговле:
    15
  • Год начала экспорта:
    2018
  • Доля экспорта:
    10%
  • Основные рынки сбыта:
    Северная Америка, Южная Америка, Восточная Европа, Юго-Восточная Азия, Африка, Ближний Восток, Восточная Азия
  • Ближайший порт:
    Порт Чэнду
  • Схема импорта-экспорта:
    Общая торговля
Производственные мощности
  • Адрес завода:
    3-2-608, Третий восточный округ, Глобальный центр "Новый век", № 1700, северная часть проспекта Тяньфу, Зона высоких технологий, Чэнду, Китай
  • Научно-исследовательский потенциал:
    Строго проверяйте каждый продукт
  • Количество научных сотрудников:
    15
  • Годовой объем производства:
    Десять миллионов
Сертификат

Отправить сообщение этому магазину

*имя:
*почта:
*Ваш телефон:
*содержание:
Введите от 20 до 4000 символов.
ООО Сычуань ДонгТурбо Электрическая Компания
3-2-608, Третий восточный округ, Глобальный центр "Новый век", № 1700, северная часть проспекта Тяньфу, Зона высоких технологий, Чэнду, Китай