• 400-955-5758

Набор для установки высоковольтного выключателя в шкаф KYN28A-12

Параметры продукта

  • Индивидуальная настройка:

    доступна

  • Послепродажное обслуживание:

    1 год

  • Гарантия:

    1 год

ООО Хэнбянь Группа технологий умного управления и энергетическое оборудование
№ 61, улица Цзинсан, зона экономического развития Юэцин, город Юэцин, город Вэньчжоу, провинция Чжэцзян
Описание продукта
Информация о компании
Основная информация
Производственный процесс
Формование
Рабочее давление
Атмосферное давление
Транспортная упаковка
Деревянный ящик
Упаковка и доставка
Транспортная Упаковка
стандартная транспортная упаковка
Происхождение
China
Описание продукта

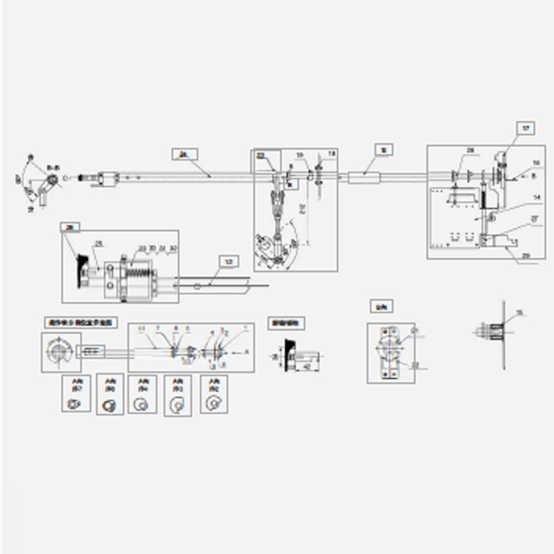
SHG.363.010.4.1 Устройство механизма блокировки управления заземляющим переключателем  

Это устройство блокировки является усовершенствованием исходной конструкции SHG.363.010 на основе механизма управления заземляющим переключателем. Новая конструкция добавляет реверсивную блокировку дверцы. После открытия задней двери (плитки) старое устройство блокировки позволяет управлять заземляющим переключателем, в то время как это устройство блокировки не может быть активировано. Для того чтобы управлять заземляющим переключателем, необходимо сначала закрыть заднюю дверь (плитку).

Принцип работы данного устройства блокировки заключается в том, что на основе оригинальной конструкции SHG.363.010 задняя часть была заменена на опору, которая блокирует механизм. Когда задняя дверь (плитка) открыта, штифт 13HG.02.286, под действием пружины, выдвигается наружу от корпуса и упирается в вращающийся элемент, который блокирует блокировку болта, предотвращая операцию заземляющего переключателя.

Набор для установки высоковольтного выключателя в шкаф KYN28A-12
Набор для установки высоковольтного выключателя в шкаф KYN28A-12
Набор для установки высоковольтного выключателя в шкаф KYN28A-12
  • Тип деятельности:
    Производитель / завод
  • Основная продукция:
    Комплектное оборудование и трансформаторы
  • Количество сотрудников:
    200
  • Год основания:
    2020
  • Сертификация систем менеджмента:
    ISO9001
  • Средний срок поставки:
    1 неделя
  • Номер:
    001
  • Среднее время ответа:
    24 часа

ООО Хэнбянь Группа технологий умного управления и энергетическое оборудование — это компания, занимающаяся разработкой продукции, такой как европейские и американские кабельные аксессуары, комплектующие для распределительных подстанций типа ‘бокс’, газовые компоненты/аксессуары, а также изолирующие соединители высокого напряжения до 35 кВ, распределительные коробки DFW и другие изделия. Это многофункциональное предприятие, объединяющее разработку, производство и продажу.

Компания оснащена как импортными, так и отечественными резиноформовочными машинами, машинами для вакуумного прессования, резинотехническими экструдерными машинами, оборудованием для высоковольтных испытаний и испытаниям полимерных материалов.

Возможность торговать
  • Международные торговые термины(Incoterms):
    DFW
  • Условия оплаты:
    LC, T/T, D/P
  • Средний срок поставки:
    1 неделя
  • Количество сотрудников по внешней торговле:
    50
  • Год начала экспорта:
    2022
  • Доля экспорта:
    35%
  • Основные рынки сбыта:
    Европа
  • Ближайший порт:
    Портовый район Динцзяцяо
  • Схема импорта-экспорта:
    Общий режим
Производственные мощности
  • Адрес завода:
    № 61, улица Цзинсан, зона экономического развития Юэцин, город Юэцин, город Вэньчжоу, провинция Чжэцзян
  • Научно-исследовательский потенциал:
    мощный
  • Количество научных сотрудников:
    25
  • Годовой объем производства:
    10000000
ООО Хэнбянь Группа технологий умного управления и энергетическое оборудование

Отправить сообщение этому магазину

*имя:
*почта:
*Ваш телефон:
*содержание:
Введите от 20 до 4000 символов.
ООО Хэнбянь Группа технологий умного управления и энергетическое оборудование
№ 61, улица Цзинсан, зона экономического развития Юэцин, город Юэцин, город Вэньчжоу, провинция Чжэцзян